Model DL33L-310-ST, Series Linear Actuators

Model DL33L-310-ST, Series Linear Actuators

UnitMetric
SeriesDL33L Series Linear Actuators
WidthStandard Width
Travel310 mm
Metric Travel Filter301 to 400 mm
Load Capacity400 N
Metric Capacity Filter201 to 400 N
Accuracy50 mm
M18
M216
M316
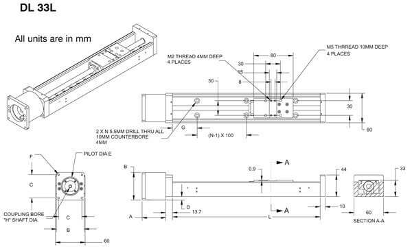
OAL Stepper471.8
L Stepper400
N Stepper4
A Stepper48.1
B Stepper56.4
C Stepper47.2
D Stepper7.2
E Stepper38.2
G Stepper50
F Stepper8-32 THREAD
H Stepper6.35
OAL Servo476.9
A Servo53.2
B Servo60
C Servo49.5
D Servo8.9
E Servo50.1
L Servo400
N Servo4
G Servo50
F ServoM5 THREAD
H Servo8
DriveTeflon Coated lead screw 9.53mm dia with 5 mm lead
Motor AdapterOriental PK264 (NEMA 23)
CofFriction0.01
Repeatability4
Parallelism15
Linear Speed100
SensorsNo sensors